Wohnen in der Höllenstrasse
Entwurfsverfasser: Aurora Faraci, Dorina Tolnai, Johanna Sundermann
Semester: 2. Semester
Betreuer: Prof. Dipl-Ing. Horst Sondermann
Hochschule: Hochschule für Technik Stuttgart

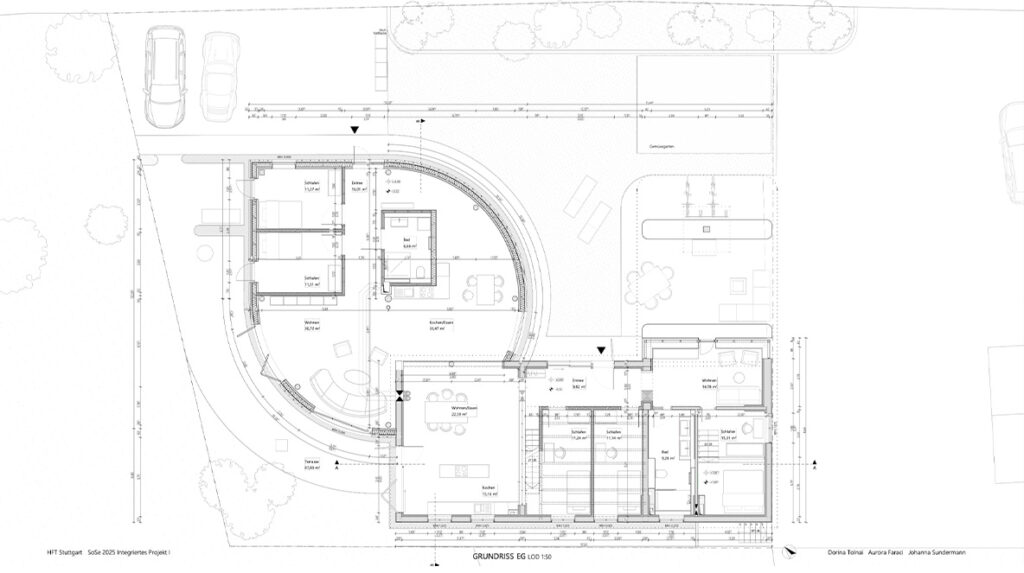
In Kirchzarten bei Freiburg steht an der alten B31 eine Tankstelle aus den 1950er Jahren, die künftig zu Wohnzwecken umgenutzt wird. Ergänzt wird das Ensemble durch einen Erweiterungsbau mit einer weiteren Wohnung. So entsteht auf dem Grundstück eine gemeinschaftliche Wohnanlage, bestehend aus einer Wohnung im denkmalgeschützten Bestand und einer im Neubau.
Ziel des Projekts ist es, ein generationsübergreifendes Wohnkonzept zu schaffen, das gemeinschaftliches Leben in den Mittelpunkt stellt. Der Entwurf verbindet den historischen Bestand mit einem klar strukturierten Neubau, dessen Rundung sich an der typischen Formensprache einer 50er-Jahre-Tankstelle orientiert. Diese Geste knüpft an die Geschichte des Ortes an und übersetzt sie in eine zeitgemäße Architektur. Ein Teil des Neubaus wird rollstuhlgerecht ausgeführt, um Barrierefreiheit und Inklusion zu gewährleisten. Die Gemeinschaftsräume des Neubaus sind in der rund ausgeformten Gebäudepartie angeordnet, während die Nutzräume an den geraden Wandflächen liegen. Ihre klare, moderne Formsprache hebt die Bedeutung des gemeinschaftlichen Bereichs hervor und schafft einen harmonischen Kontrast zu den geradlinig angeordneten Nutzräumen. Durch die südliche Ausrichtung der Gemeinschaftsbereiche entstehen helle, offene Räume, die zum Austausch und Verweilen einladen.
Eine Aufstockung auf dem Bestandsdach erweitert das Raumangebot um einen multifunktional nutzbaren Bereich. Dieser wertet das Gebäude nicht nur architektonisch auf, sondern bietet zugleich Rückzugs- und Ruhezonen innerhalb des gemeinschaftlich geprägten Ensembles.
Das Projekt vereint Vergangenheit und Gegenwart und schafft einen Ort, an dem Gemeinschaft, Individualität und Architektur in ein harmonisches Gleichgewicht treten.




